Krušné hory - Klínovec - Háj u Loučné pod Klínovcem
 |
E-mail:
Tato emailová adresa je chráněna před spamboty, abyste ji viděli, povolte JavaScript
|
Kapacita objektu: 20 osob Dopravní spojení: Autem i v zimních podmínkách přímo před vilu.
Poloha:Vila se nachází v centrální části horské obce Háj u Loučné pod Klínovcem v nadmořské výšce 960 m n.m. nad potokem Bílá voda u místní komunikace vedoucí pod Klínovec. Vzdálenost k lyžařskému areálu Klínovec 2,2 km, Boží Dar 6 km (hraniční přechod), Oberwiesenthal 3 km (hraniční přechod pro pěší a cyklisty-2,5 km pěšky), Karlovy Vary 33 km, Chemnitz 64 km, Dresden 140 km, Praha 140 km. Umístění na mapě
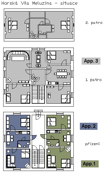
Vybavení:Kompletně nově rekonstruovaná vila I. kategorie s třemi apartmány s halou a koupelnou s WC, lyžárnou a vlastním parkovištěm. Vytápění je ústřední s elektrokotlem, teplou vodu zajišťují elektrické bojlery s ohřevem 20 hod. denně. Výborný signál pro mobilní telefony.
Ubytování: Ve dvou apartmánech pro 4-5 osob a v jednom apartmánu pro 10 osob. Každý apartmán je vybaven ložnicí s dvoulůžkem, obytnou ložnicí s dvoulůžkem, rozkládací sedací soupravou s přistýlkou, SAT-TV-DVD, rádiem s CD, nábytkem, koupelnou se sprchou, vysoušečem vlasů, umyvadlem a WC, ve vstupní hale každého apartmánu je umístěna kuchyňská linka a jídelní kout. Kuchyň je vybavena veškerým nádobím pro vlastní stravování, dvouvařičem, varnou konvicí, mikrovlnou troubou, kávovarem a chladničkou. K dispozici je další velký samostatný dvoupodlažní apartmán pro 10 osob vybavený obývacím pokojem s velkou sedací soupravou, přistýlkou, SAT-TV-DVD, hudební soupravou s CD, kuchyní vybavenou pro vlastní stravování s jídelnou, dvěmi koupelnami s WC a jedním samostatným WC s umyvadlem v podkroví a pěti dvoulůžkovými ložnicemi ve dvou podlažích.
Stravování:Vlastní (obchod 50 m) nebo v blízkých restauracích.
Zábava a sport: (2000 m) Osvětlené hřiště na tenis, volejbal, nohejbal, minigolf, půjčovna kol, moderní krytý relaxační bazén s vodopádem, perličkou, vodním hřibem a masážními tryskami, sauna, fitcentrum, billiard, pool. Přímo u vily sáňkování a bobování pro děti, pískoviště, potok s jezírkem, zahradní nábytek, gril, 500 m nový rekreační rybník se vždy křišťálovou vodou ke koupání. Možnost využití cyklistických a běžeckých tras v okolí.
Skiareál Klínovec je největší lyžařské středisko Krušných hor. Nachází se pouze 120 km západně od Prahy, v blízkosti hranic s Německem. Lyžařské tratě všech druhů obtížnosti jsou pravidelně upravovány. Středisko nabízí 2 sedačkové lanovky, 10 vleků a sněhovou garanci modernizovaným systémem umělého zasněžování, který pokrývá 80 % sjezdových tratí z celkem 10,1 km o rozloze 21,5 hektarů. Zasněžovací systém je plně automatizován. V areálu je k dispozici 35 km upravovaných běžeckých tratí. Dále nabízí: U rampu kategorie Superpipe, snowpark. Děti do 100 cm jsou přepravovány zdarma. Ve středisku se nachází, mimo jiné, lyžařský miniareál vhodný především pro lyžařské začátečníky a rodiny s malými dětmi. V miniareálu je dětský vlek zdarma. Dalšími službami jsou 3 lyžařské školy, 2 půjčovny lyžařského vybavení, 3 skiservisy, 7 bufetů a restaurací a 3 veřejná parkoviště s kapacitou 500 aut – zdarma. Využít lze i nabídky lyžování na Božím Daru nebo v Oberwiesenthalu (též letní bobová a sáňkařská dráha), ideální pro výlety do Německa např.: parní železnicí z Oberwiesenthalu do přírodního parku nebo do rozsáhlého krytého vodního světa s tobogány v Geyeru.
NOVINKA: SkiBus zastávka přímo před Vilou.
 Pro více o sportech na Klínovci klikněte na odkaz www.sportklinovec.cz
Více informací na: http://klinovec.org |